Cottage deluxe

Casetta nel bosco

VERSATILE, ESSENZIALE, CONFORTEVOLE

Il cottage deluxe è pensato per tutti coloro che amano stare a contatto diretto con la natura e vogliono una base d’appoggio confortevole per le loro avventure.

Ispirato alla tradizione dei rifugi escursionistici vanta un design accattivante e al contempo essenziale, con ampie vetrate orientate verso il panorama che permeano il diretto contatto con la natura e permettono una sensazione di essere immersi nel paesaggio circostante.

Adattabile al 100% ad ogni situazione ambientale e climatica, risponde garantendo un ottimale benessere abitativo sia nei climi più miti sia in quelli più rigidi.

Le immagini qui presentate sono suggestioni visive, create da Revosteel per ispirare e dare un'idea del potenziale progettuale.

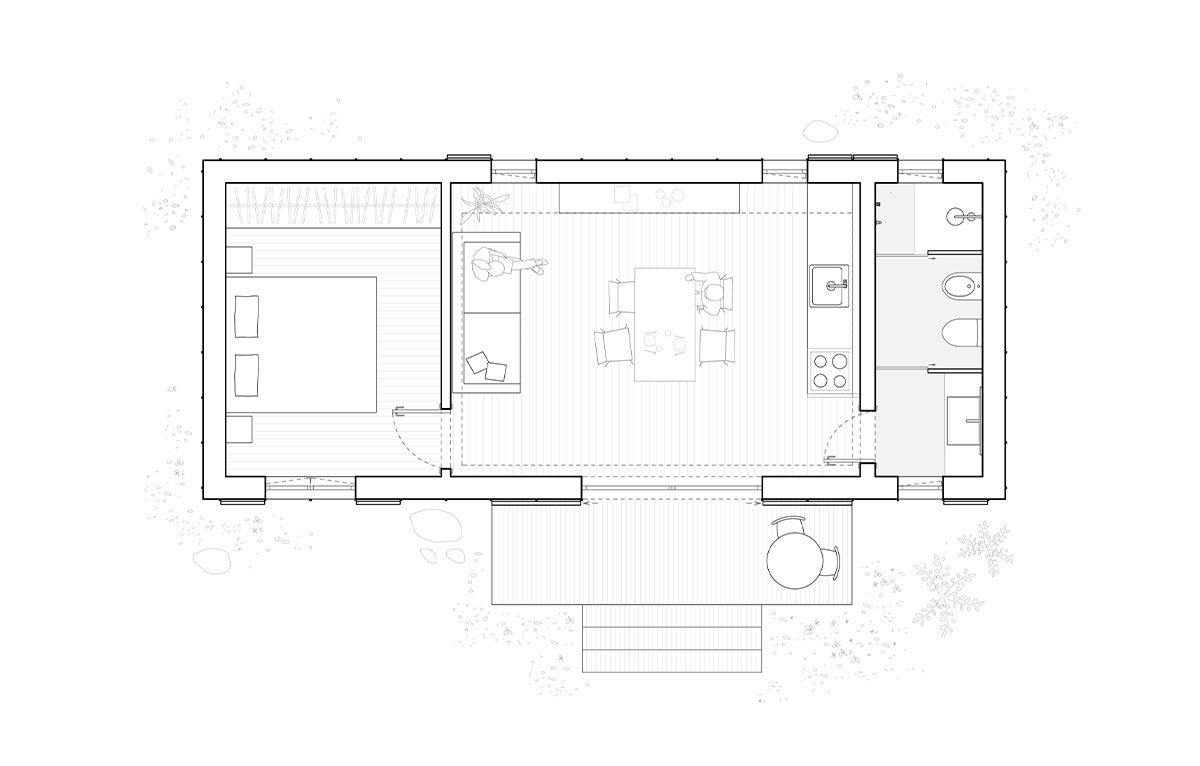
COTTAGE

CLASSE ENERGETICA A4
Area totale 37 m²

Zona giorno e notte 24 m²
Bagno 6 m²

Cucina abitabile con quattro posti a sedere
Letto matrimoniale
Bagno completo di doccia

A partire da 90.000 €*

Tempi di costruzione: 6-8 mesi dalla costruzione della platea

*L’importo indicato per ciascun modello si intende per il progetto illustrato in catalogo da realizzarsi con la formula: “CHIAVI IN MANO” configurazione "Equilibrato"

Il punto di partenza è il modulo abitativo minimo, che si piò espandere in lunghezza per aggiungere stanze o trasformare collegando più unità, dando vita a nuove configurazioni spaziali.

Secondo la stessa logica, più casette possono essere costruite una affianco all’altra, creando un suggestivo agri-campeggio o uno sport hotel.

COTTAGE + CAMERA

CLASSE ENERGETICA A4
Area totale 48 m²

Soggiorno con cucina open da 21m²
Camera da letto da 11m²
Bagno da 6 m²

Cucina abitabile con quattro posti a sedere
Divano-letto matrimoniale
Letto matrimoniale
Armadio spazioso
Bagno completo di doccia

Tempi di costruzione: 6-8 mesi dalla costruzione della platea

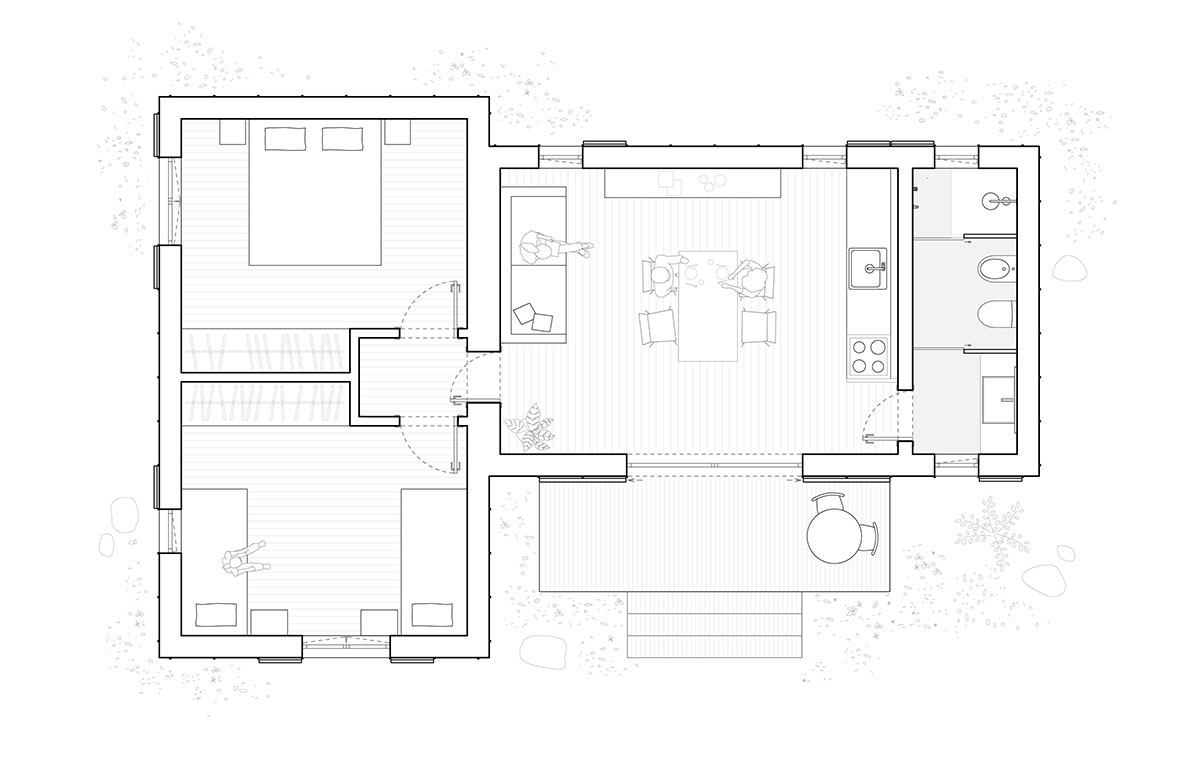
COTTAGE A L

CLASSE ENERGETICA A4
Area totale 68 m²

Soggiorno con cucina open da 21m²
Due camere da letto da 13 m²
Bagno da 6 m²

Cucina abitabile con quattro posti a sedere
Divano-letto matrimoniale
Letto matrimoniale
Due letti singoli
Due ampie armadiature
Bagno completo di doccia

Tempi di costruzione: 6-8 mesi dalla costruzione della platea

COTTAGE DOPPIO

CLASSE ENERGETICA A4
Area totale 73 m²

Soggiorno da 14 m²
Cucina open da 14 m²
Due Camere da letto da 11m²
Bagno da 6 m²

Ampia zona giorno open con cucina abitabile con quattro posti a sedere
Divano-letto matrimoniale
Letto matrimoniale
Letto singolo
Due ampie armadiature
Bagno completo di doccia

Tempi di costruzione: 6-8 mesi dalla costruzione della platea

Richiedi informazioni senza impegno


contact img