Casale

ACCOGLIENTE, GENEROSO, ADATTABILE

Il design del casale si ispira alle tradizionali abitazioni agricole, che si caratterizzano per la loro struttura lineare e allungata, con un tetto a falde distintivo.

Il tipico fienile è stato reinventato in forma di serra, uno spazio versatile che può essere adattato per molteplici utilizzi. Questo ambiente polifunzionale può fungere da atelier creativo, estensione del soggiorno principale, serra per la coltivazione di frutta e verdura, limonaia, camera degli ospiti o magazzino per gli attrezzi agricoli.

Questa casa è progettata per adattarsi armoniosamente sia alle ampie distese pianeggianti che alle dolci colline circostanti.

La sua regolarità nelle linee e nella facciata, insieme alla semplicità dei materiali e del layout, si integrano perfettamente nel contesto circostante.

Pensata per coloro che apprezzano l’autenticità e la praticità della vita, senza per questo rinunciare alla moderna tecnologia, essa rappresenta un vero gioiello architettonico.

Le immagini qui presentate sono suggestioni visive, create da Revosteel per ispirare e dare un'idea del potenziale progettuale.

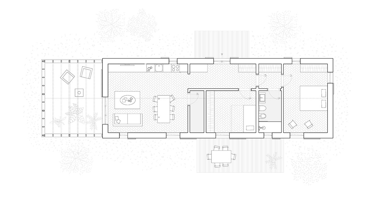
CASALE 1 PIANO

CLASSE ENERGETICA A4
Area totale 97 m²

Soggiorno
Cucina open
Camera matrimoniale
Camera singola
Armadiature fisse
Bagno Lavanderia
Deposito
Locale Tecnico

A partire da 190.000 €*

Tempi di costruzione: 6-8 mesi dalla costruzione della platea

*L’importo indicato per ciascun modello si intende per il progetto illustrato in catalogo da realizzarsi con la formula: “CHIAVI IN MANO” configurazione "Equilibrato"

La casa si presenta in due varianti: una ad un piano, ideale per chi preferisce la comodità di non avere scale, e l’altra a due piani, caratterizzata da un’imponente doppia altezza che si affaccia sul soggiorno.

È inoltre possibile costruire più unità abitative simili, creando così la tradizionale corte delle cascine, dove le serre possono essere trasformate in spazi comuni per socializzare e condividere momenti di convivialità.

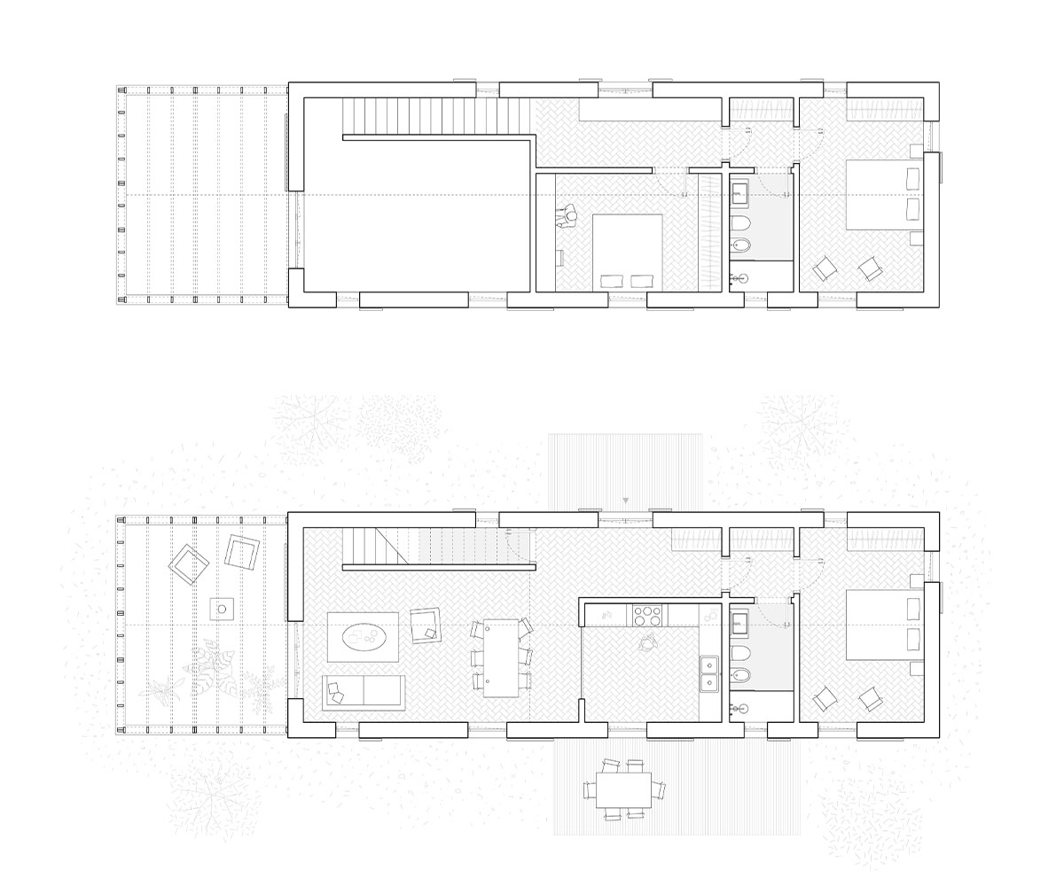
CASALE 2 PIANI

CLASSE ENERGETICA A4
Area totale 195 m²
PRIMO PIANO

Camera matrimoniale
Camera singola
Bagno
Lavanderia
Armadiature fisse

PIANO TERRA

Soggiorno
Sala da pranzo
Ampia cucina
Bagno
Camera matrimoniale
Deposito
Locale tecnico

A partire da 280.000 €*

Tempi di costruzione: 6-8 mesi dalla costruzione della platea

*L’importo indicato per ciascun modello si intende per il progetto illustrato in catalogo da realizzarsi con la formula: “CHIAVI IN MANO” configurazione "Equilibrato"

Richiedi informazioni senza impegno


contact img