REVOSTEEL

House of the Future

From the Module to the House

Dal Modulo
alla Casa

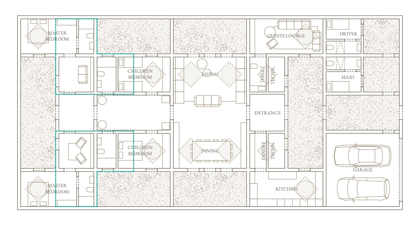
Il nostro progetto parte dall'idea di modularità che consente una composizione, una combinazione aperta e sempre flessibile. Abbiamo sviluppato un volume ideale di 3 x 3 x 3 metri, riempito da spazi aperti o chiusi e disposto secondo le necessità della casa.

Seguendo questo principio abbiamo trovato nell'acciaio profilato a freddo una soluzione adatta al progetto per diverse ragioni, tra cui facilità di costruzione, basso costo, precisione, sostenibilità e la flessibilità che l'acciaio profilato a freddo fornisce attraverso aggiunte e modifiche al piano. Il nostro sistema consiste infatti in un muro perimetrale, al quale sono attaccati i muri interni. Abbiamo sviluppato un sistema composto da un numero limitato di tipi di parete (9), consentendo così infinite possibilità nella disposizione del piano, garantendo comunque la standardizzazione nei dettagli e nelle aperture per controllare i costi. In particolare, presentiamo qui quattro variazioni su questo tema.

All'inizio, il terreno di 15 x 30 metri è diviso dalle 4 pareti trasversali primarie che racchiudono gli spazi principali della casa: ingresso e garage, aree di servizio, soggiorni e blocchi di camere da letto, vengono posizionati. In un secondo momento, vengono fissati i muri portanti da due e tre moduli, a sostegno della disposizione delle travi. Infine, i muri non portanti di un modulo completano le partizioni.

Il cantiere è semplice e pulito: una piegatrice può essere installata in loco e solo le bobine di acciaio devono essere trasportate con camion, minimizzando lo spazio necessario per il trasporto. Questo sistema di costruzione non necessita nemmeno di una risorsa preziosa come l'acqua: ogni elemento è assemblato a secco, partendo dalle fondamenta e terminando con il tetto. I materiali di rivestimento sono naturali, ad esempio pannelli di terra cruda all'esterno e tessuti e piastrelle all'interno, completamente riutilizzabili, che possono essere facilmente smontati o modificati in caso di estensioni o cambi di destinazione d'uso da parte dei proprietari.

Opzione 1
Opzione 1
Opzione 2
Opzione 2
Opzione 3
Opzione 3
Opzione 4
Opzione 4
Detail wall
Atlas

Atlante degli elementi, composto solo da 2 tipi di travi e 9 tipi di muri di 5, 3, 2 e 1 unità di 3 metri. Le aperture delle porte possono sempre essere convertite in aperture per finestre semplicemente aggiungendo un riempimento in acciaio profilato a freddo (CFS).

Una strategia climatica

Il progetto dimostra che le caratteristiche climatiche ad alta tecnologia possono coesistere con pratiche a bassa tecnologia studiando le condizioni climatiche locali. La grande superficie sul tetto ci ha permesso di sviluppare un kit progettato per integrare le funzioni di base della casa, mantenendola abitabile se isolata per un certo periodo di tempo o semplicemente garantendo una temperatura ideale senza l'uso di elettricità. Il kit è legato alle singole stanze e può quindi essere composto secondo le proprie esigenze. La struttura del tetto stesso è ventilata grazie alle aperture esterne, che richiamano elementi tradizionali.

La casa può essere sottoposta sia a ventilazione ad alta tecnologia (due unità split vrv sul tetto) sia a ventilazione naturale fornita dai camini solari nelle stanze e dalle torri eoliche nel soggiorno. L'aria, raffreddata dall'ombra e dalla vegetazione dei cortili, entra nella casa e, dopo aver raffreddato le varie stanze, esce dall'alto.

Ogni camino solare ha un condensatore di umidità integrato con la propria piccola cisterna, sfruttando così l'alta concentrazione di umidità nell'aria nelle regioni costiere e compensando la mancanza di umidità nelle aree più interne.

In caso di emergenza idrica, questi dispositivi, che sfruttano l'evaporazione di una miscela di acqua salata, raccolgono fino a 18 litri di acqua purificata al giorno e possono fornire acqua alle varie funzioni (bagni e cucina) semplicemente utilizzando la gravità. L'elettricità stessa è fornita dai pannelli solari sul tetto con un'estensione di 60m2 (1 kW/6 m2) e viene immagazzinata nelle batterie nel locale tecnico, dove c'è anche una pompa di calore con caldaia e un piccolo generatore di sicurezza a combustibile.

Section 1
Water Condenser
Section 2
The System

Il Sistema

Il progetto muove una critica alla regolamentazione del Codice Edilizio di Dubai che impone una distanza minima di 3 metri dal muro divisorio. Infatti, questa regola porta inevitabilmente allo sviluppo di un numero limitato di varianti chiaramente riconoscibili dall'esterno, trattando anche il giardino come un residuo della casa.
Invece, estendendo la casa fino al muro e integrando quest'ultimo nella casa stessa, il giardino diventa parte del design.

In questo modo, la casa occupa solo un piano, con costi di costruzione ridotti, recuperando attraverso la sua altezza la privacy garantita dalla distanza di 3 metri. I cortili diventano parte di quella serie di elementi che rappresentano aspetti tradizionali rivisitati all'interno della casa, come la stessa materialità degli interni tra tessuti e pavimenti in piastrelle.

Questi disegni rappresentano solo quattro delle potenziali variazioni realizzabili con questa modularità (una griglia ideale di 3 x 3 metri in un terreno di 15 x 30 metri) all'interno di questo programma, poiché stiamo effettivamente proponendo un sistema che può essere modificato in base alle esigenze delle famiglie. Si tratta di una combinazione di moduli. In tutte le variazioni, ogni spazio ha un cortile che offre luce e vista, creando così maggiore intimità e una certa separazione tra le diverse aree.

In una casa del futuro, questa modularità e l'uso dell'acciaio profilato a freddo consentono la reinterpretazione di molti spazi: un garage inutilizzato può diventare un negozio locale, un laboratorio, uno spazio per lavorare; la sala macchine può diventare una boutique più piccola, un deposito, un salotto del tè.

The System 2
Opzione 01 piano terra, estensione possibile al piano superiore
Opzione 01 piano terra, estensione possibile al piano superiore
Opzione 02 piano terra, estensione possibile al piano superiore
Opzione 02 piano terra, estensione possibile al piano superiore
Opzione 03 piano terra, estensione possibile al piano superiore
Opzione 03 piano terra, estensione possibile al piano superiore
Opzione 04 piano terra, estensione possibile al piano superiore
Opzione 04 piano terra, estensione possibile al piano superiore

"House is a city and city is a house."
Aldo van Eyck, Piet Blom

House is a city and city is a house

Partendo dall'unità abitativa singola, declinata in 4 varianti diverse, abbiamo creato un tessuto urbano che evita la ripetizione infinita e alienante di una singola tipologia e consente alle abitazioni di relazionarsi con il contesto, creando una serie di spazi pubblici miranti a decentrare la vita comune e moltiplicare i luoghi d'incontro.

Nel programma urbano presentato, ogni casa può infatti donare due moduli di cortile allo spazio pubblico, espandendolo con una serie di nicchie per socializzare. Inoltre, per ogni casa viene incoraggiato l'uso di almeno un garage come negozio, laboratorio, spazio di lavoro, creando opportunità per il quartiere e le singole famiglie. Gli spazi comuni diventano così punteggiati da una serie di arredi urbani a seconda della situazione, coperti o aperti in base alla stagione.

I blocchi consistono di otto unità residenziali e consentono la differenziazione tra strade continue, che sono i principali accessi, e strade discontinue, divise in accessi secondari e strade pedonali, che sono spazi sicuri per bambini e giovani.

Su una scala più ampia, questo sistema urbano, integrato con edifici di carattere pubblico per il quartiere (in blu: scuole, cliniche, centri di quartiere, biblioteche), si presenta come una città moderna, composta da strade più o meno ampie, spazi aperti e piazze. Non è il solido che occupa il vuoto, ma il vuoto che crea spazio nel solido, più o meno nascosto a seconda del grado di privacy.

Trasforma il tuo progetto in una casa del futuro

Contattaci